高知県高知市鴨部1丁目

 (外観) (外観) (居間) (内装) (キッチン) (内装) (風呂) (トイレ) (内装) (内装)
価格
1,080万円
中古マンション
間取
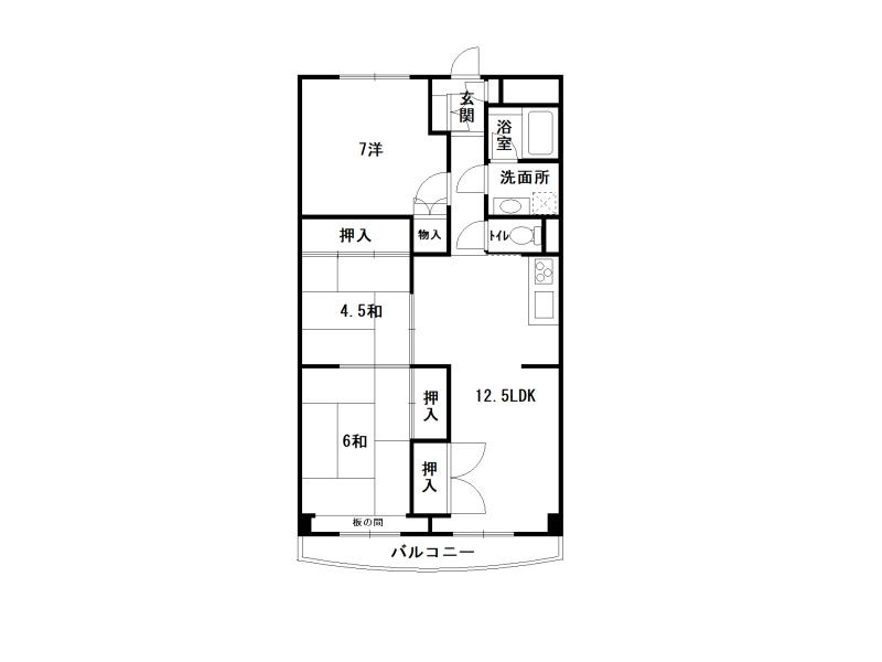
3LDK
共益費・管理費
7,000円
修繕積立金
5,000円
所在地 高知県高知市鴨部1丁目  鏡川コーポA棟
交通 とさでん交通市内線 蛍橋駅 徒歩10分 
築年月 1977/06 新築/中古 中古
面積 70.76m² 計測方式 内法
バルコニー 6.6m² 向き
建物階数 地上11階  部屋階数 5階
部屋/区画番号 520 総戸/区画数
建物構造 SRC
管理形態 自主管理  管理人日勤 
間取内容
和室6帖/和室4.5帖/洋室7帖/LDK12.5帖
住宅保険料 修繕積立金 5,000円
現況 空家 取引態様 仲介
駐車場 3,000円 空有 引渡/入居時期 相談
周辺環境 鴨田小学校 650m 西部中学校 80m
設備・条件 ガスコンロ 三口コンロ システムキッチン 追い焚き 独立洗面台 バス・トイレ別 温水洗浄便座 エアコン 室内洗濯機置き場 TVドアホン 都市ガス 公営水道 エレベータ 駐車場有 駐輪場 バイク置き場 バルコニー
物件番号 5102790630
 (内装) (玄関) (内装) (内装)高知県高知市鴨部1丁目 画像15高知県高知市鴨部1丁目 画像16 (間取)
※物件掲載内容と現況に相違がある場合は現況を優先と致します。