火災に強い省令準耐火構造のオール電化住宅で、フラット35適合しています。
津波・土砂の災害予想区域外!

火災に強い省令準耐火構造のオール電化住宅で、フラット35適合しています。
津波・土砂の災害予想区域外!

|
| 所在地 | 高知県高知市瀬戸南町1丁目 |
|---|---|
| 交通 | バス (長浜バイパス別停 停歩9分) |
| 築年月 | 2013/11 | 新築/中古 | 中古 |
|---|---|---|---|
| 面積 | 100.19m² | 計測方式 | |
| バルコニー | 向き | ||
| 建物階数 | 地上2階 | 部屋階数 | |
| 建物構造 | 木造 | ||
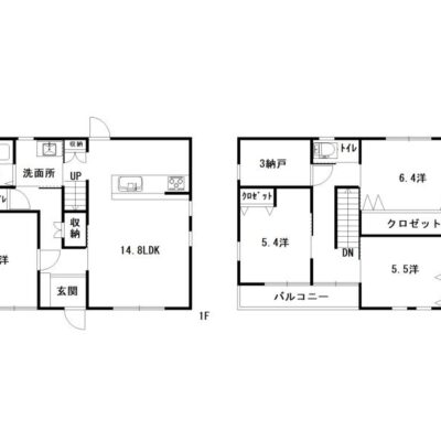
| 間取内容 |
洋室6帖/洋室5.4帖/洋室6.4帖/洋室5.5帖/SLDK14.8帖/サービスルーム3帖 |
||
| 地目 | 宅地 | 用途地域 | 第一種低層住居専用地域 |
| 都市計画 | 市街化区域 | 地勢 | |
| 土地面積 | 169.6m² | 土地面積計測方式 | 公簿 |
| 建ぺい率 | 60% | 容積率 | 100% |
| 土地権利 | 所有権 | 接道状況 | |
| 現況 | 空家 | 取引態様 | 仲介 |
| 駐車場 | 空有 1台駐車可能 | 引渡/入居時期 | 相談 |
| 周辺環境 |
長浜小学校 1,400m 南海中学校 1,600m |
||
| 設備・条件 | IHコンロ システムキッチン カウンターキッチン 追い焚き 独立洗面台 バス・トイレ別 温水洗浄便座 TVドアホン 駐車場有 専用庭 オール電化 | ||
| 物件番号 | 5102763305 | ||