
高知県高知市鴨部2丁目
|
| 所在地 | 高知県高知市鴨部2丁目 |
|---|---|
| 交通 | とさでん交通市内線 蛍橋駅 徒歩15分 |
| 築年月 | 2021/05 | 新築/中古 | 中古 |
|---|---|---|---|
| 面積 | 89.43m² | 計測方式 | |
| バルコニー | 向き | ||
| 建物階数 | 地上2階 | 部屋階数 | |
| 建物構造 | 木造 | ||
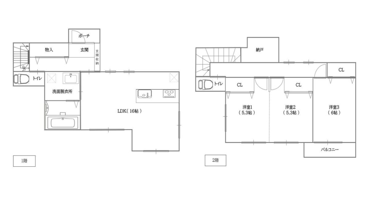
| 間取内容 |
洋室6帖/洋室5.2帖/洋室5.2帖/SLDK15.5帖/サービスルーム2帖 |
||
| 地目 | 宅地 | 用途地域 | 近隣商業地域 |
| 都市計画 | 市街化区域 | 地勢 | 平坦 |
| 土地面積 | 30.55m² | 土地面積計測方式 | 公簿 |
| 建ぺい率 | 80% | 容積率 | 200% |
| 土地権利 | 所有権 | 接道状況 | 一方 |
| 接道方向1 | 北 | 接道間口1 | 13m |
| 接道種別1 | 公道 | 接道幅員1 | 5.3m |
| 現況 | 空家 | 取引態様 | 仲介 |
| 引渡/入居時期 | 相談 | ||
| 周辺環境 |
鴨田小学校 529m 西部中学校 452m |
||
| 設備・条件 | カウンターキッチン 食器洗い乾燥機 独立洗面台 バス・トイレ別 エアコン 室内洗濯機置き場 公営水道 排水下水 フローリング | ||
| 物件番号 | 5104094397 | ||
Loading...
※物件掲載内容と現況に相違がある場合は現況を優先と致します。


